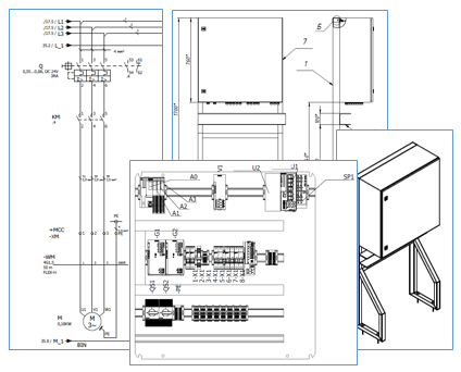
Мы подготовим электрический проект на шкаф автоматизации.
Мы принесем пользу в новых проектах и при модернизациях. Если у вас есть технологическая схема, то мы разработаем и согласуем с вами проект по автоматизации и структуру АСУ ТП.
Мы соберем шкаф управления и выполним сборку по готовым проектам, которые у вас есть.


